Zurück

Revitalisierung eines Bürohauses "An der Börse 5+6" in Hannover

Ort Hannover
Bauherr EMO VR6 GmbH c/o Getec Immobilien GmbH
Fertigstellung 2027
Beauftragte Leistung LPH 1-9
Baukosten keine Angabe
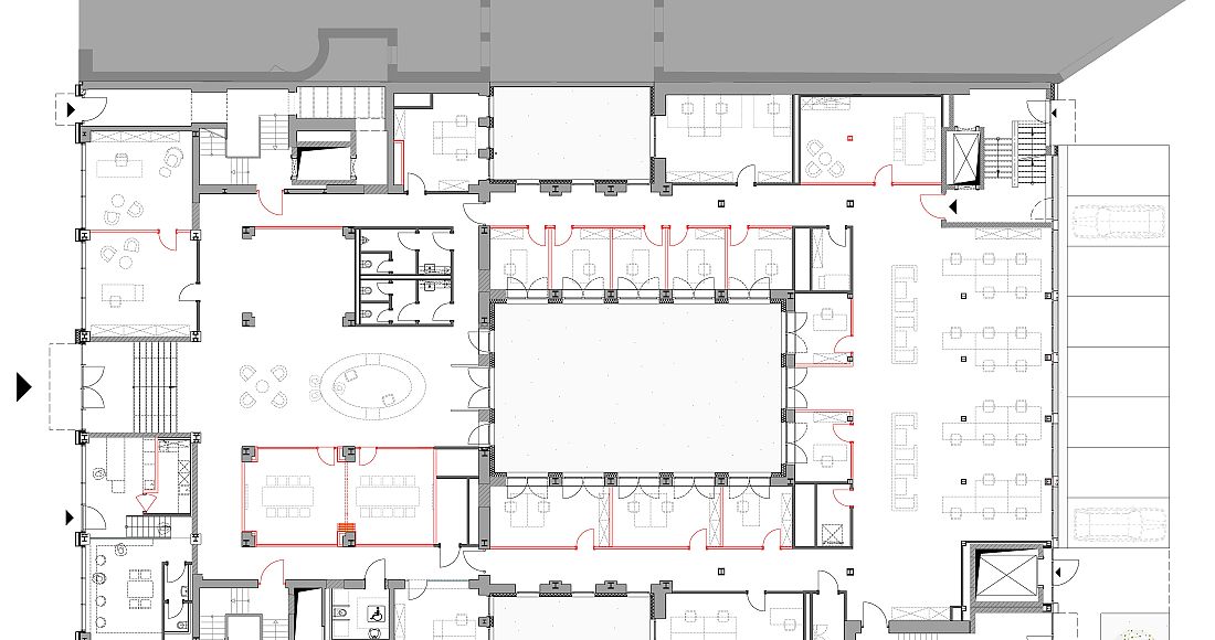
Das ehemalige Bankgebäude an der „An der Börse 5+6“ im Zentrum Hannovers wird revitalisiert und zu einem attraktiven Geschäftsgebäude im gehobenen Standard umgebaut. Auf ca. 7.500 m² Nutzflächen entstehen barrierefreie Büro- und Geschäftsflächen, eine Zahnarztpraxis und ein Café. 

Das heutige Gebäude besteht aus einem 5-geschossigen Straßenhaus (Richtung Oper) und einem 4-geschossigen Hofhaus (Richtung Theaterhof). Beide Gebäudeteile sind um ein zentral gelegenes Atrium gelegen.

Geplant sind neben der Kernsanierung auch die Erweiterung und Aufstockung des Gebäudes. Das Dachgeschoss, des zur Oper gelegenen Gebäudeteils, wird umgebaut, die komplette Dachkonstruktion stützenarm erneuert und mit großzügigen Gauben versehen. Das Hofhaus wird ab Erdgeschoss erweitert und um zwei Geschosse aufgestockt.

Das Gebäude erhält straßenseitig eine zeitgemäße, wärmegedämmte Vorhangfassade mit neuer Gliederung aus großformatigen, bodentiefen Fensterelementen und Natursteinbändern. Die Natursteinplatten orientieren sich, aus Gründen des Denkmalschutzes, farblich an der Nachbarbebauung.

Die hofseitige Fassade ist als thermisch getrennte Aluminium-Fassadenkonstruktion mit bodentiefen Fenstern konzipiert. In den Geschosse 1.OG+ werden zudem Loggien zu den angrenzenden Büro- oder Konferenzräumen geplant.

Das Gebäude soll das DGNB-Gold Zertifikat mit dem Qualitätssiegel Nachhaltiges Gebäude (QNG) bekommen.