Zurück

FERTIGSTELLUNG

Neubau eines Mehrfamilienhauses

Eichstraße 25 in Laatzen

Ort 30880 Laatzen
Bauherr Wohnungsbaugenossenschaft Laatzen eG
Fertigstellung Juni 2023
Beauftragte Leistung LPH 1 - 8
Baukosten ca. 1,3 Mio. Euro
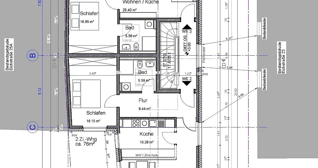
Im Zuge einer Nachverdichtung der bestehenden Bebauung wurde das vorhandene sanierungsbedürftige Einfamilienhaus abgerissen und durch eine 2,5-geschossige Bebauung mit insgesamt 4 Wohneinheiten ersetzt.
Der Neubau setzt die benachbarte Hauszeile mit Dachform und Gebäudehöhe fort. Durch den Verblender als Fassadenmaterial wird die andere historische Nachbarbebauung als Referenz mit einbezogen. Somit wird ein zeitgemäßes Mehrfamilienhaus in Alt-Laatzen geschaffen.
Die Wohnungen verfügen über einen Balkon / Loggia oder Dachterrasse. Die Wohnungsgrößen reichen von einer optimierten 2-Zi.-Wohnung bis zu großzügigen 2-Zi.-Wohnungen mit offenen Wohn-Essbereichen.