Zurück

Fertigstellung

Neubau einer Kindertagesstätte

in Hannover  - Lahe

Ort Rischkamp, 30659 Hannover
Bauherr Walter und Charlotte Hamel Stiftung
Fertigstellung voraussichtlich Sommer 2023
Beauftragte Leistung LPH 1-8
Baukosten keine Angabe
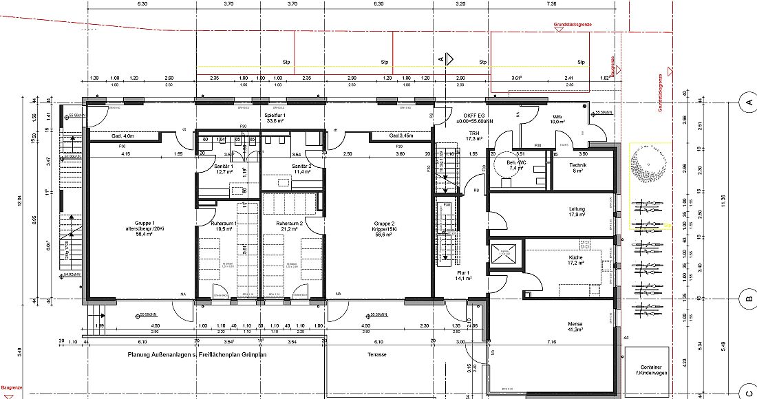
Im Wohngebiet des Stadtteils Hannover-Lahe entsteht in der Umgebung von Reihenhäusern eine zweigeschossige Kindertagesstätte mit 3 Gruppenräumen und einem Bewegungsraum. Der Eingang dieses etwas abseits der Straße liegenden Gebäudes liegt auf der Ecke und ist von der Straße „Rischkamp" gut zu erkennen. Alle Gruppenräume und der Speiseraum orientieren sich mit großen Fensterflächen zum Garten nach Süden. Die Gruppenräume haben durch großzügige verglaste Glaselemente zum Flur und den bodentiefen Fenstern des Flures auch eine Aussicht nach Norden. Jeder Gruppenraum hat einen abgetrennten Ruheraum.
Die Außenspielfläche nach Südwesten ist vielfältig gegliedert und bietet mit den unterschiedlichsten Spielgeräten ein abwechslungsreiches Angebot. Das extensiv begrünte Dach ermöglicht eine Versickerung des Regenwassers auf dem Grundstück. Der helle warme Braunton der Putzfassade wird durch das fröhlich frische Grün der Trespafassade akzentuiert und betont den Eingangsbereich.