Zurück

Neubau Gastwirtschaft "Wichmann" mit Hotel in Hannover

Ort Hannover
Bauherr Morzynski Vermögensverwaltungskommanditgesellschaft
Gesamtfläche ca. 1.900 m² BGF
Fertigstellung voraussichtlich Ende 2022
Beauftragte Leistung LPH 2 - 9
Baukosten keine Angabe
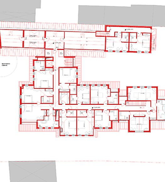
Das traditionsreiche Gasthaus „Gastwirtschaft Wichmann" an der Hildesheimer Straße soll wieder neu aufgebaut werden und wird auch nach Fertigstellung einen Kontrast zur Umgebung darstellen. Das Gebäudeensemble behält mit seinem Hauptgebäude seine traditionelle Anmutung, während die angrenzenden Nebengebäude eine moderne Interpretation traditioneller Architektur erhalten. Die ursprüngliche Kubatur bleibt hierbei weitestgehend erhalten. Das Gebäude wird ein Restaurant mit Außengastronomie und Boutique-Hotel mit 18 Zimmern erhalten und verfügt außerdem über eine Tiefgarage, die über einen Autolift angesteuert werden kann. Die gesamte Inneneinrichtung des Ensembles soll die Besonderheit des Ortes, seiner Geschichte und Exklusivität widerspiegeln. Es wird ein besonderer Ort für Gäste aus Hannover, seiner Umgebung und darüber hinaus geschaffen.