Zurück

Südafrikanischer Braai Grill in Hannover

Ort Hannover
Bauherr Heike und Norbert Schu
Fertigstellung 2020
Beauftragte Leistung LPH 1-8
Baukosten keine Angabe
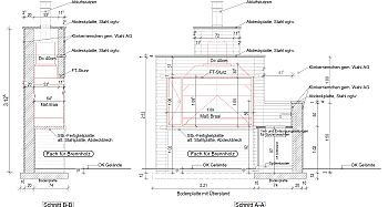
Nach Idee und Vorgaben des Sternekochs Norbert Schu entstand der Entwurf für diese einzigartige, spektakuläre Feuerstätte, die einem typischen südafrikanischen Braai-Grill nachgestellt wurde. Die Grillanlage wurde behutsam in die sorgsam inszenierte Gartenlandschaft der Familie Schu integriert.