Zurück

Umbau / Grundsanierung Sporthalle BR 5 Niedersachsenkaserne Bergen / Hohne

Ort Bergen-Hohne
Bauherr Bundesrepublik Deutschland, vertreten durch das Staatliche Baumanagement Lüneburger Heide
Fertigstellung 2026
Beauftragte Leistung LPH 2 - 8
Baukosten ca. 2,9 Mio. €
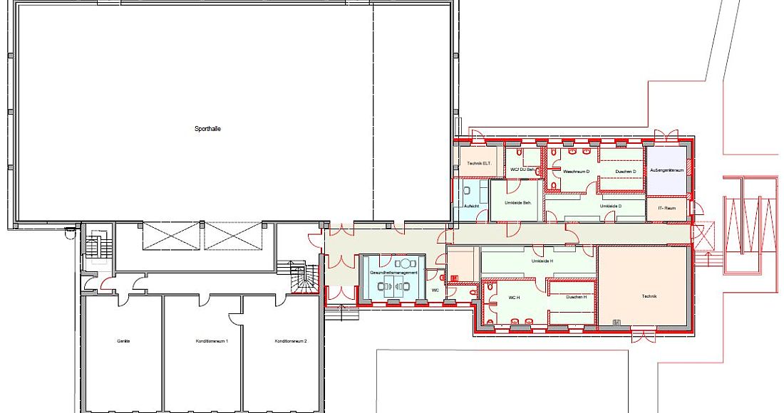
Die Sanierung des Gebäudes BR5 sichert am Standort Bergen-Hohne in der Niedersachsen Kaserne die vorschriftenkonforme Sportausbildung.

Das aus dem Jahr 1982 stammende Bestandsgebäude BR5 wurde für die britischen Streitkräfte errichtet und bis heute weitestgehend im Originalzustand genutzt.

Der Gebäudeteil der Umkleiden wird kernsaniert. Umgesetzt werden Maßnahmen zur:

  • Behindertengerechten Erschließung des Gebäudes
  • Trennung der Erschließung in einen schwarz/ weiß Bereich („Turnschuhgang“)
  • Trennung der Technikflächen
  • Brandschutztechnische Abtrennung der Gebäudeteile und Technikflächen
  • Energetische Sanierung der Fassaden- und Dachflächen
  • Erneuerung der Gebäudetechnik
  • Schadstoffsanierung