Zurück

Sanierung Unterkunftsgebäude 8 Scharnhorst-Kaserne

Ort Hannover
Bauherr Bundesrepublik Deutschland, vertreten durch das Staatliche Baumanagement Hannover
Fertigstellung N.N.
Beauftragte Leistung bisher LPH 2-8
Baukosten ca. 6 Mio. €
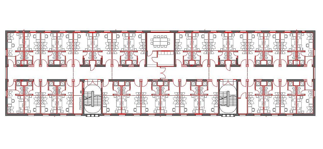
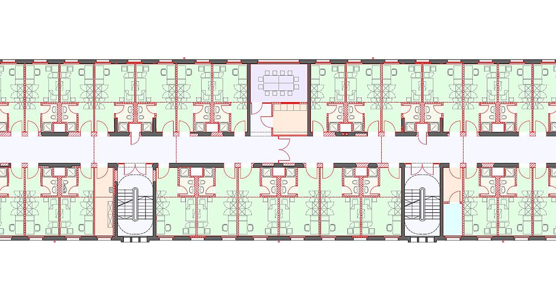
Die Sanierung des bestehenden 60m langen Unterkunftsgebäudes 8 auf der Liegenschaft der Scharnhorst-Kaserne in Hannover dient der Unterbringung von Lehrgangsteilnehmern in Hannover.
Die vorhandene Bausubstanz aus den 30er Jahren wurde bisher in seiner ursprünglichen Raumstruktur mit Schlafsälen, sowie Gemeinschaftswasch- und Toilettenbereichen genutzt. Durch die Sanierung des Gebäudes wird die Nutzung als Unterkunftsgebäude im Hotelstandart umgesetzt mit 90 Einzelzimmern und direkt zugeordneten Nassbereichen. Die allgemein für alle Nutzer zu Verfügung stehenden Studienräume und Teeküchen sind zukünftig zentral im Gebäude angeordnet. Zur Optimierung der Raumstrukturen für die Unterkunftsräume werden tragende Wände entfernt und durch Stahlkonstruktionen ersetzt.

Die Fassade und die Treppenhäuser werden behutsam in Abstimmung mit dem Denkmalschutz saniert. Die Fenster der Treppenhäuser bleiben erhalten und werden aufgearbeitet. Alle anderen Fenster und Außentürelemente werden im Rahmen der Maßnahme in Anlehnung an den Bestand erneuert und an die aktuellen Anforderungen des Wärmeschutzes angepasst.
Das Dachtragwerk wird freigelegt, ggf. ausgebessert und mit einer neuen Eindeckung versehen.