Zurück

Neubau DRK Pflege- und Begegnungsstätte Villa Henry in Hannover

Ort Hannover
Bauherr DRK Region Hannover
Beauftragte Leistung bisher LPH 1-3
Baukosten keine Angabe
AUFGABENSTELLUNG
• Unterschiedliche Nutzungen (Wohnen / Soziales / Pflege) werden in einer Begegnungsstätte zusammengefasst und bieten somit für das Quartier einen Sammelpunkt der Aktivitäten und Bedürfnissen von älteren Menschen.
• Das Angebot soll es ermöglichen, den wechselnden Anforderungen von älter werdenden Menschen gerecht zu werden, ohne dass ein erneuter Ortswechsel erforderlich ist. Deshalb werden neben betreuten Wohneinheiten unterschiedliche Pflegeformen angeboten.

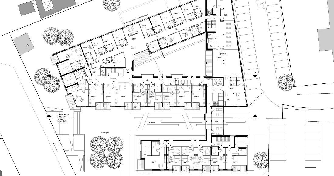
STÄDTEBAULICHES KONZEPT
• Ausbildung einer Promenade von Westen nach Osten führt zur „Durchlässigkeit" des Grundstückes zwischen der Straße „Am Listholze" und der Fuß-und Radwegverbindung
• Schaffung eines Quartierplatzes (Ausrichtung nach Südwesten)
• Unterschiedliche Aufenthaltsqualitäten im Außenbereich (Arkaden = geschützter Außenbereich / Quartiersplatz = Boule Spiel unter Bäumen / offener Platz vor Kulturzentrum = Versammlungsbereich / Innenhof = geschützter Bereich für Tagespflege)

FUNKTION I ERSCHLIESSUNG
• Entlang der Promenade werden neben den Treppenhäusern auch das MVZ, das Kulturzentrum (mit Vortragssaal und Bistro), 2 kleine Ladeneinheiten sowie eine Tagespflegestation erschlossen. Somit können die Bausteine eines funktionierenden Quartierskonzeptes ebenerdig nebeneinander genutzt werden.
• Eine arkadenartige Ausbildung des Erdgeschosses unterstreicht den Promenadencharakter und schafft geschützte Außenbereiche für die quartiersbezogenen öffentlichen Nutzungen.
• Die Wohneinheiten des betreuten Wohnens sind fast ausschließlich nach Süden oder Westen ausgerichtet und haben alle einen individuellen Freiplatz. Durch die Lage in den Obergeschossen wird dem Ruhebedürfnis des Wohnens Rechnung getragen.