Zurück

Umbau eines Beratungscenters einer Sparkassenfiliale in Langenhagen

Ort Langenhagen
Bauherr Sparkasse Hannover
Fertigstellung 2019 in 2 Bauabschnitten
Beauftragte Leistung LPH 1 - 9
Baukosten keine Angabe
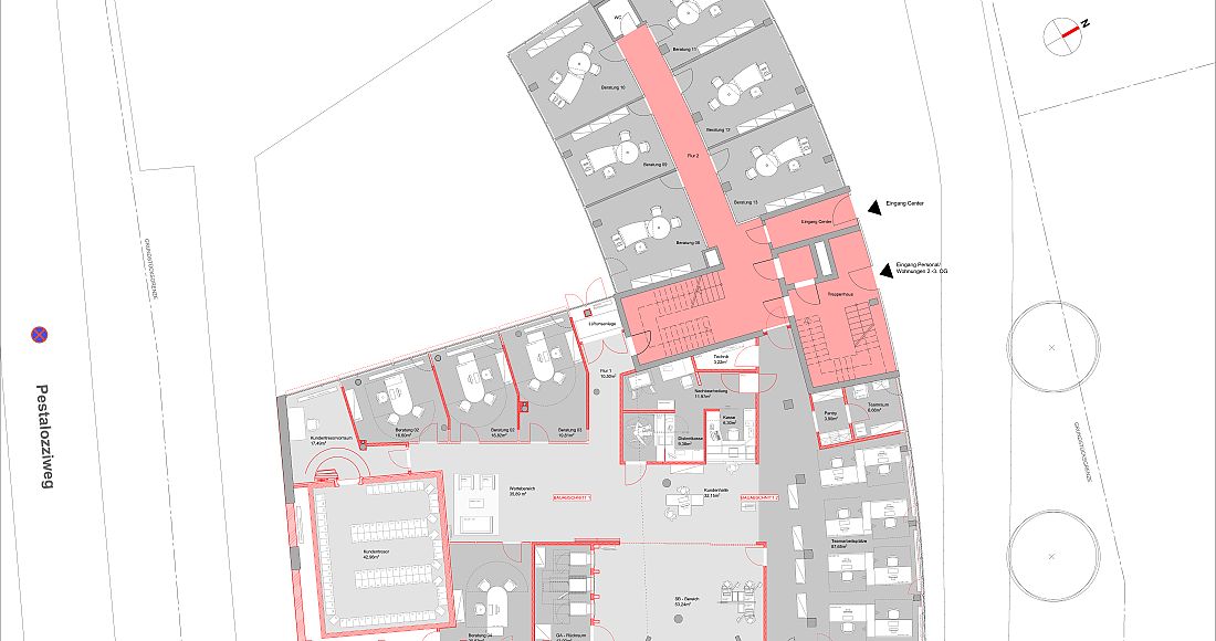
Um die Prosperität des Beratungscenters in Langenhagen an der Walsroder Straße langfristig zu sichern, hat sich Sparkasse Hannover entschlossen die Filiale an geänderte Kundenwünsche anzupassen und zu modernisieren. Das Gebäude aus den 60er Jahren liegt an der ursprünglichen Hauptgeschäftsstraße in Langenhagen und gehört fest zum gewachsenen und etwas heterogenen Stadtbild von Langenhagen.

Im Zuge des Umbaus wird eine neue Raumaufteilung mit neuem Kassenbereich und einer Mietfachanlage im Erdgeschoss realisiert. Hierzu ist eine komplette Entkernung der Fläche erforderlich.
Die Umbauarbeiten werden in mehreren Abschnitten unter Erhaltung des Geschäftsbetriebes durchgeführt. Der 1. Bauabschnitt mit Schadstoffsanierung startete im November 2018 und wird bis zum April 2019 planmäßig abgeschlossen. Nach Umzugsphase der Mietfachkunden wird der 2. Bauabschnitt von August bis Ende 2019 umgesetzt.