Zurück

Neubau eines Bürogebäudes mit Tiefgarage Freundallee - Hannover

Ort Hannover - Freundallee
Bauherr Artis Hannover II GmbH
Fertigstellung 4. Quartal 2020
Beauftragte Leistung LPH 1 - 9
Baukosten keine Angabe
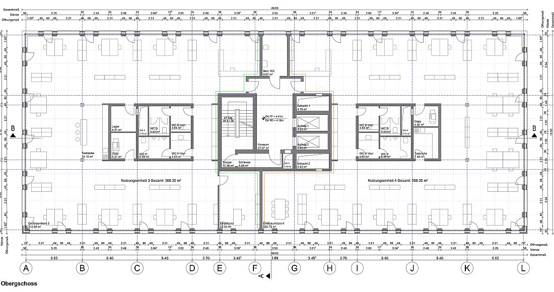
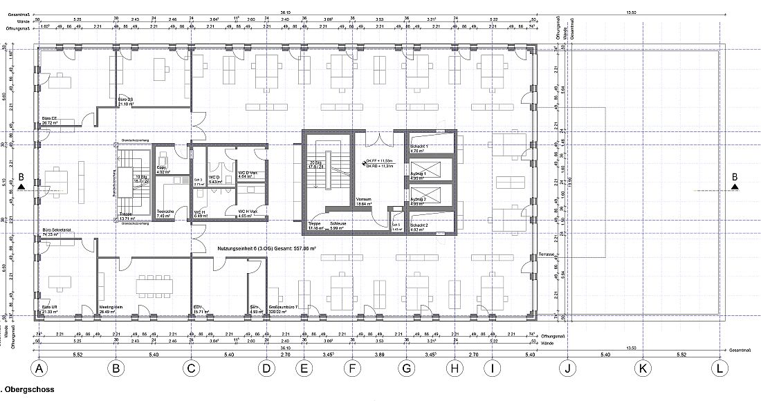
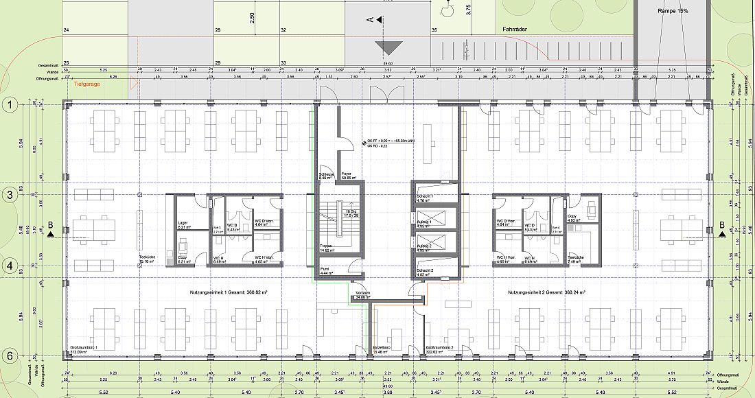
Die ARTIS Hannover II GmbH plant den Neubau eines Bürogebäudes im hannoverschen Stadtteil Bult.

Geplant ist ein bis zu 6-geschossiger Baukörper inkl. Tiefgarage, welcher in Richtung Osten niedriger wird und sich auf drei Geschosse reduziert.

Ein zentraler Kern mit Erschließung, Sanitäranlagen und Nebenräumen im Zentrum des Gebäudes ermöglicht eine vollkommen flexible Aufteilung der Büroflächen und der Fassade. Die Fassade zeichnet sich durch einen Wechsel bodentiefer großformatiger Panoramafenster und schmaleren öffenbaren Fensterelementen aus. Durch einen zusätzlichen Wechsel der Fensterelemente in den Geschossen entsteht eine ansprechende dynamische Fassade. Mit der gewählten Klinkerfassade fügt sich der Neubau homogen in die bestehende Umgebung ein.