Zurück

Neubau eines Vereinssportzentrums für den Hannoverschen Sportverein von 1896 e.V.

Ort Hanover - Stammestraße / Stadionbrücke
Bauherr Hannoverscher Sportverein von 1896 e.V.
Fertigstellung Anfang 2019
Beauftragte Leistung LPH 1 – 9 (in Arbeitsgemeinschaft mit Martin Müller Architekten BDA)
Baukosten keine Angabe
ERLÄUTERUNGSTEXT
Idee ist es von der Stadionbrücke eine einladende Geste zu schaffen. Der Baugrenze folgend öffnet
sich das überdachte Entree Richtung Nordosten. Eine zentrale Achse führt mittig durchs Gebäude und
verbindet das Vereinsgelände unmittelbar mit dem geplanten Gebäude und ermöglicht so den
gleichwertigen Zugang von Norden und Süden.
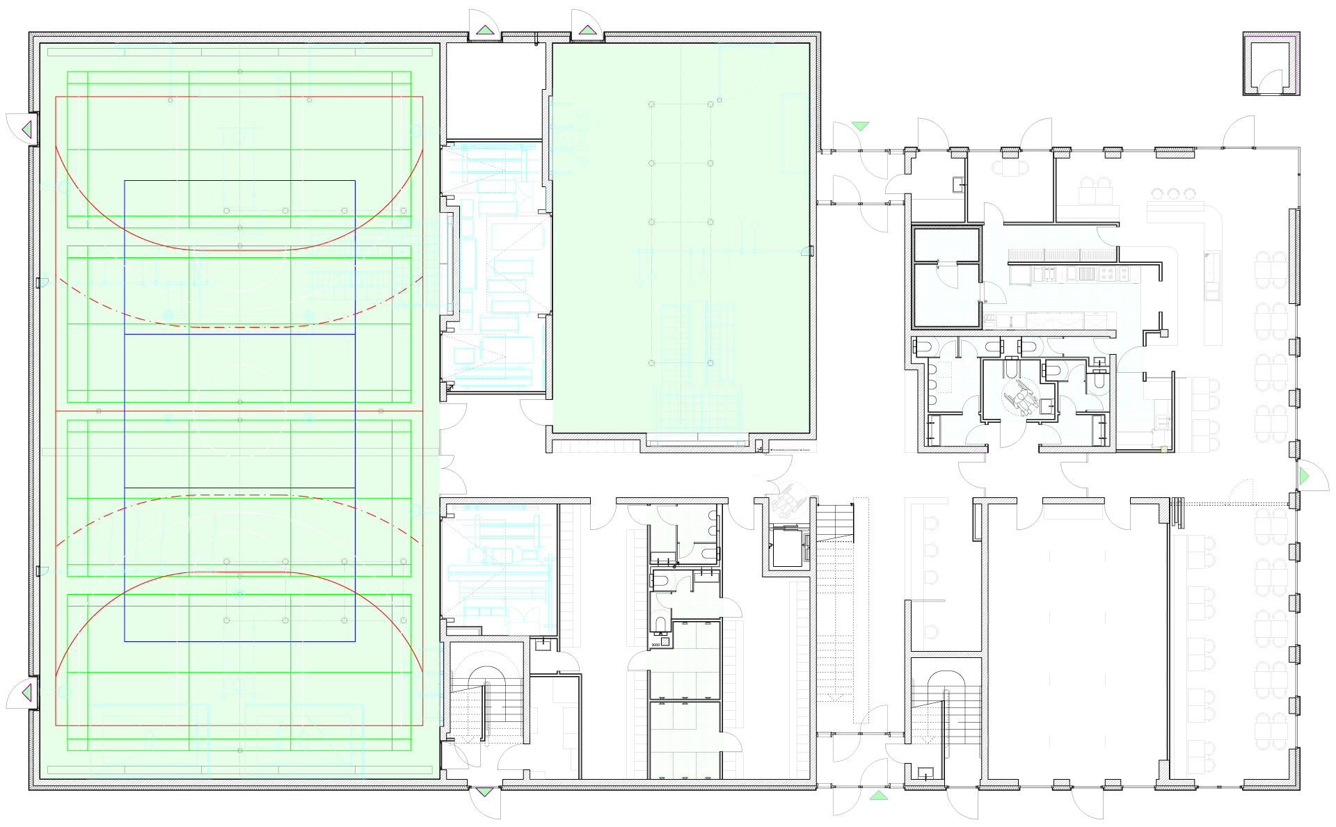
Im ersten Bauabschnitt wurde ein 2-3-geschossiges Gebäude mit verschiedenen Außenanlagen
errichtet. Im Gebäude entstanden zwei Sporthallen mit 450 qm und 160 qm sowie die erforderlichen
Umkleidebereiche mit Sanitäreinrichtungen. Vom Erdgeschoss gelangen die Besucher über die
zentrale Treppe auf die Fitness Ebene im 2.OG. In dem Sockel werden ostseitig die
„Sonderfunktionen" aufgenommen: Gastronomie und Verwaltung. Die Vereinsgaststätte wird von
Norden erschlossen und spannt sich entlang der Stammestrasse bis zum Austritt auf die
Südterrasse. In dem darüber liegendem Zwischengeschoss wird die Verwaltung angeordnet.