Vom Bürogebäude auf dem Contidrom bis hin zum Büro- und Geschäftshaus in der City Hannovers, Am Klagesmarkt - der Aufgabenbogen von schulze & partner. architektur. ist weit gespannt.

Doch so unterschiedlich die Anforderungen auch sein mögen, ist die gedankliche Grundlage unserer Arbeit immer gleich: Funktionale und ästhetische Bauten zu schaffen, deren Lebens-, Arbeits- und Erlebnisräume über den reinen Gebrauchswert hinaus von hohem, nachhaltigen Nutzen für alle Beteiligten sind.

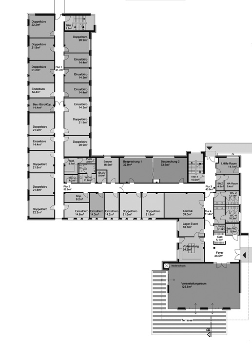
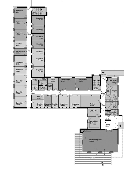
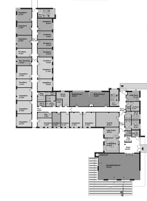
Bürogebäude Continental, Contidrom, Jeversen - 2013


Die Continental Reifen Deutschland GmbH betreibt seit den 60er Jahren ein Reifenversuchsgelände in Jeversen.
Als Ersatz für temporäre Büroräume und durch Expansion des Standortes wurde ein Neubau mit ca. 70 Büroarbeitsplätzen erforderlich.
Entsprechend der vorhandenen Bebauung wurde der Neubau 2-geschossig konzipiert. Für Events auf dem Contidromgelände wurde ein Veranstaltungsbereich in den Neubau integriert, der leicht auffindbar das Gebäude von der Zufahrtstraße präsentiert. Durch die großflächige Verglasung des ca. 130 m² großen Veranstaltungsraumes lässt sich die Teststrecke gut beobachten, und das auskragende Dach schafft einen geschützten Außenraum auf der vorgelagerten Terrassenfläche.
schulze & partner. architektur. hat als Generalplaner alle Leistungsphasen für das Gebäude realisiert.


Bauherr: Continental Reifen Deutschland GmbH

 

Veranstaltungsgebäude mit Grundriss Erdgeschoss

 

 

Der 2-geschossige Neubau passt sich der vorhandenen Bebauung auf dem Contidromgelände an; die Signalfarbe des Eventbereiches gibt auf dem weitläufigen Areal Orientierungshilfe.
Entsprechend der Sonderfunktion des in den Neubau integrierten Veranstaltungsraumes wurde eine Wandbekleidung in „Contigelb" als Fassadenmaterial eingesetzt.

Gebäude Sparkasse Bahnhofstraße, Hannover - 2012


Nach Umbau und Sanierung der Filiale Bahnhofstraße verfügt die Sparkasse Hannover seit Dezember 2012 über ein zentrales Mitarbeiter-Schulungszentrum.
Bislang fanden die hausinternen Schulungen an mehreren Orten statt.
Im Zuge der Fassadensanierung wurden in das dritte und vierte Obergeschoss bodentiefe Fenster ein- gebaut. Die nunmehr vom Tageslicht durchfluteten Schulungs- und Aufenthaltsräume wurden modernisiert, und schaffen durch akustikverbessernde Rasterdecken sowie einem variablen, freundlichen Farbdesign ein optimales Lernumfeld.


Bauherr: Sparkasse Hannover

 

 

 

 

Bodentiefe Fenster lassen mehr Tageslicht in die Schulungsräume.
Grundriss Erdgeschoss
Rasterdecke mit integrierten Leuchtkörpern und farbigen Intarsien.
Die Farbgestaltung
der Schulungs- und Aufenthaltsräume fördert eine angenehme Atmosphäre und trägt zum Wohlbefinden der Mitarbeiter bei.

Stadthaus Rautenstraße, Hannover - 2013


Das Jugendstilgebäude bildet als Eckpfeiler in der zentral gelegenen Rautenstraße einen markanten Blickfang im Charme der Gründerzeit, in dem nach Umbau und Komplettsanierung exklusive Stadtwohnungen für den Verkauf als Eigentumswohnungen entstanden sind.
Hohe Decken und kontemporäre Grundrisse in Verbindung mit hochwertigen Materialien und komfortablen Ausstattungen ließen außergewöhnliche Erlebnisräume in den 8 Wohnungen und 3 Maisonetten entstehen.
Die Wohnungen mit 3 bis 6 Zimmern weisen Wohnflächen von 115 m² bis 187 m² auf.
Die Erdgeschoss-Wohnungen verfügen über einen Garten; die oberen Wohnungen über große Balkone. In das Haus wurde aufwendig ein Aufzug eingebaut.


Bauherr: WohnWert Hannover GmbH

 

Grundriss Erdgeschoss

 

 

 

Das Jugendstilgebäude bietet Platz für 8 großzügige Wohnungen mit 3 bis 6 Zimmern von 115 m² bis 187 m² Wohnfläche sowie 3 Maisonetten.
Altbaucharme und exklusive Raumgestaltung gehen in den hochwertig renovierten Räumen eine perfekte Verbindung ein.

Campus Weinberg/HAWK, Hildesheim - 2014


Das niedersächsische Wissenschaftsministerium und das Finanzministerium nutzen gemeinsam mit der HAWK (Hochschule für angewandte Wissenschaft und Kunst) die Chance, auf dem Gelände des Städtischen Klinikums Hildesheim einen Hochschulcampus mit der Zusammenführung bisher über das Stadtgebiet verteilter Fakultäten zu errichten.
Das Konzept sieht die Nutzung eines ca. 21.500 m² großen Geländebereichs vor.
Durch den Umbau eines bestehenden Gebäudes und die Errichtung von vier neuen Gebäuden entstehen auf ungefähr 10.000 m2 Nutzfläche Seminarräume, Hörsäle, Werkstätten, Labore, Büros und eine Bibliothek.
Die Fertigstellung des Campus ist für 2014 geplant.


Bauherr: Grundstücksgesellschaft Lüder Projekt 5 GmbH

 

Übersichtsplan und Grundriss Haus 01 mit Zentralbibliothek
Die Fakultäten Gestaltung sowie die Fakultät Erhaltung von Kulturgütern werden von 8 verschiedenen Standorten im Stadtgebiet und daraus resultierenden weiten Wegen und hohem Zeitaufwand an einem Ort zusammengefasst.
Kernstück des Konzepts ist die Symbiose von Bestehendem und Neuem, die gleichwohl die verschiedenen Studiengänge vereint und sich in das Stadtbild Hildesheims als Bestandteil des öffentlichen Lebens einfügt.

Architektenwettbewerb, Verwaltungsgebäude, Hannover - 2011


Anlass des geladenen Architektenwettbewerbs
im Jahr 2011 war die Errichtung eines gewerblich genutzten Gebäudeensembles auf dem Grundstück Osterstraße/Röselerstraße/Karmarschstraße in zentraler Innenstadtlage von Hannover.
schulze & partner. architektur. erhielt den 2. Preis. Laut Preisgericht gibt die streng orthogonal gegliederte Natursteinfassade mit quadratischen Fensteröffnungen dem Gebäude die Möglichkeit, mit seiner Eigendarstellung dem Standort gerecht zu werden. Weiterhin wird in der schriftlichen Bewertung aufgeführt, dass der Entwurf über städtebauliche sowie architektonische Qualität verfügt und in städtebaulich wohltuender Weise die vorhandene Grenzführung korrigiert.


Ausloberin: PB Grundbesitz-, Investitions- und Entwicklungsgesellschaft mbH & Co. KG

 


Der Entwurf besetzt die beiden Straßenkanten und nimmt den gebogenen Verlauf der Straßenräume auf.
Unterschiedliche Gebäudetiefen im Verwaltungsgebäude ermöglichen flexible Bürostrukturen.

Büro- und Geschäftshaus Am Klagesmarkt, Hannover - 2011


Im sechsgeschossigen Gebäude in der City Hannovers entstanden nach Umbau und Revitalisierung Büros und Läden auf einer Mietfläche von 6.618 m2. In unmittelbarer Nachbarschaft des ca. 2.000 m2 großen Eckgrundstücks befinden sich DGB, Baumarkt Bauhaus, DKV, Allianz sowie Arztpraxen, Rechtsanwaltskanzleien und gastronomische Betriebe.
Auf der Otto-Brenner-Straße folgt der Bau dem Straßenverlauf in sanftem Bogen und verleiht so der architektonischen Strenge Charme und Eleganz. Besonders mit Blick vom ehemaligen Klagesmarkt-Kreisel scheint sich das Gebäude fast fließend in das Erscheinungsbild des neu gestalteten Areals einzufügen.


Bauherr: Baum Unternehmensgruppe

 

 

 

Mit sanftem Schwung: Das umgebaute und revitalisierte Gebäude
vom ehemaligen Klagesmarkt-Kreisel und vom Klagesmarkt aus gesehen.
Entwurf des Büro- und Geschäftshauses Am Klagesmarkt 29-31.
Grundriss Erdgeschoss und Grundriss 3. Obergeschoss